제주 아일랜드힐 5차 도평 소형 타운하우스 2억대 분양
복층형 단독주택 제주 신제주(노형동) 생활권, 주택수 제외 혜택까지 받을 수 있는 소형 타운하우스 아일랜드힐 5차 도평을 소개합니다. 제주에서 나만의 단독주택을 찾고 계신가요? 실거주뿐만 아니라 투자 가치까지 고려한 프리미엄 단독주택, 아일랜드힐 5차 도평을 소개합니다. 제주국제공항과 가까우면서도 한라산과 바다 전망을 동시에 누릴 수 있는 매력적인 입지! 게다가 주택 수 제외 혜택으로 양도세 및 종부세 중과를 피할 수 있어 투자 가치가 더욱 높아집니다.


뛰어난 입지
제주국제공항 7.6km 거리로 이동이 편리합니다.
노형오거리 3.7km로 신제주 생활권을 그대로 누릴 수 있습니다.
주요 편의시설(이마트 신제주점, 드림타워, 병원, 학군)과 가까워 생활이 편리합니다.

프라이빗한 단독주택형 타운하우스 총 8세대 단독주택으로 구성된 프라이빗한 단지입니다.
층간소음 걱정 없는 복층형 단독주택이라 쾌적한 생활이 가능합니다.
개별 잔디정원이 포함되어 자연 속에서 여유로운 생활을 즐길 수 있습니다.

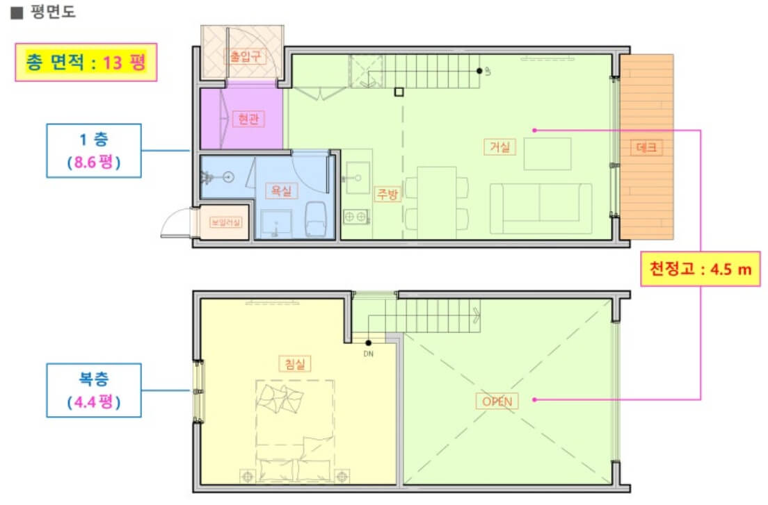
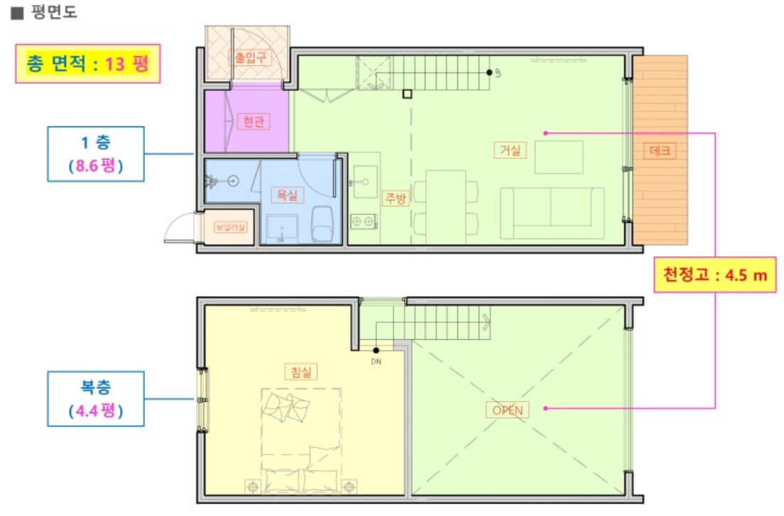
실용적인 컴팩트 타입 & 넓은 공간감
1층(8.6평): 현관, 거실, 주방, 화장실, 잔디정원
복층(4.4평): 침실 거실 천장고 4.5m로 개방감 극대화 효율적인 설계로 실사용 면적이 넉넉합니다.


한라산 조망 & 부분 바다 조망 한라산의 아름다운 사계절을 집에서 감상할 수 있습니다.
일부 세대에서는 바다 조망까지 가능하여 힐링 라이프를 제공합니다.


주택 수 미포함 (양도세 & 종부세 중과 제외) 주택 수에서 제외되므로 다주택자의 세금 부담을 덜어줍니다.
투자 목적으로도 매우 유리한 조건을 갖추고 있습니다.
풀옵션 제공
- LG 빌트인 냉장고
- LG 빌트인 세탁기
- LG 전자레인지
- 2구 전기레인지
- LG 에어컨
입주 후 추가 비용 부담 없이 바로 생활이 가능합니다.

분양 정보 & 혜택 분양가 & 계약 조건
- 분양가: 2억 2,000만 원 실거주, 세컨하우스, 임대수익을 위한 투자용으로 적합
- 입주 예정: 2025년 10월
- 주차 & 단지 구성 세대당 1대 주차 가능
- (총 8대) 단독형 타운하우스 형태로 개인 공간 확보

생활 인프라
노형오거리 및 신제주 중심지까지 차량 10분 이내 대형마트, 병원, 교육시설 근접
제주공항 접근성이 좋아 출퇴근 및 여행객에게도 최적 투자 가치 분석
주택 수 제외 혜택 → 양도세 및 종부세 중과 배제
제주 부동산 가치 상승 → 신제주 생활권은 지속적인 수요 증가
임대수익 창출 가능 → 제주 단독주택 단기 임대 수요 높음
한라산 & 바다 조망권 프리미엄 → 자연환경이 가치 상승을 견인


계약 진행
계약금 :20%
중도금 40%
잔금: 40%
마무리
제주에서 만나는 프리미엄 라이프 아일랜드힐 5차 도평 단독주택은 신제주 생활권과 자연을 동시에 누릴 수 있는 프리미엄 단독주택입니다. 실거주, 세컨하우스, 임대수익 창출까지 가능한 최적의 투자처를 찾고 계신다면 지금 바로 문의하세요.
100% 사전예약제로 운영하고 있습니다. 상담 및 방문계획이 있으신분은 아래 번호로 연락 주시거나 관심고객 등록을 해주시면 상담 및 방문예약을 해드립니다. 많은 관심과 문의 부탁드립니다. 감사합니다.
상담예약 010-7683-1788
'부동산 정보' 카테고리의 다른 글
| 대전 문화 자이 SK뷰 신축 미분양 아파트 (0) | 2025.03.13 |
|---|---|
| 가산 라티포레스트 구로구 G밸리 가리봉동 오피스텔 선착순 분양 (0) | 2025.03.08 |
| 제주영어교육도시 꿈에그린 4억원대 선착순 할인분양 제주도 서귀포시 미분양 아파트 (0) | 2025.02.26 |
| 제주 영어교육도시 고급 주택 포스힐 프레스티지 타운하우스 특별 할인분양 선착순 (0) | 2025.02.17 |
| 강남 하이엔드 신축 오피스텔 인시그니아 반포 선착순 분양 (0) | 2025.02.12 |
