동탄역 헤미쉬 오피스텔 역세권 복층 투룸 분양
동탄역 헤미쉬 오피스텔은 동탄 2 신도시에서 주거 환경을 혁신하고 있는 주거용 오피스텔입니다. 이 오피스텔은 다락 공간이 두 개의 룸으로 나뉘어져 있는 전 세대 2룸 더블 복층형 구조로 설계되어 있어 위아래로 총 4개의 룸 공간을 사용할 수 있도록 제공됩니다. 또한, 이 오피스텔은 주변 테크노밸리를 비롯한 약 400만 명의 수요층을 흡수할 수 있는 입지에 자리하고 있으며, 교통 편의성 또한 뛰어납니다. 동탄역 헤미쉬 오피스텔은 도보 3분 거리에 SRT 동탄역이 위치하고 있어 수서역까지 15분, GTX-A노선(2024년 예정) 개통 시 서울 삼성역까지 20분 이내로 이동이 가능합니다. 뿐만 아니라 2026년에는 인동선 복선전철, 2027년에는 동탄도시철도(트램) 개통 예정이며, 동탄역 복합환승센터도 조성될 예정입니다.

사업개요
동탄역 헤미쉬 오피스텔은 지하 6층에서 지상 13층까지 1개동으로 구성되어 있으며, 총 88호실로 이루어져 있습니다. 세 가지 주택형 별로 구성되어 있으며, 내부는 광폭 드레스룸과 붙박이장을 비롯한 다양한 시설을 갖추고 있습니다. 빌트인 풀옵션(세탁기, 건조기, 냉장고, 인덕션, 후드, 드레스룸 수납장 등)과 주민편의시설, 하늘정원도 조성될 예정이며, 비상발전기 시설과 소방관리 안전시스템 등의 고급 보안 시설도 갖추게 됩니다.
또한, 무인주차 시스템, 24시간 경비원 운영, 전 층 스프링클러 설치, 제연설비 계단실 2개소, 제연설비 비상엘리베이터, 난연성 단열재 사용 등의 안전시설이 구비되어 있으며, 공용 부위는 LED 조명과 세대 내부 대기전력 차단 콘센트, 복층 구조를 고려한 복층 유리 세대창호로 관리비 부담을 줄이는 데 기여합니다.

동탄역 헤미쉬의 입지환경
동탄역 헤미쉬 오피스텔은 경기도 화성시 동탄2신도시 일반상업지역에 위치하고 있으며, 수도권 남부의 중심거점인 동탄에 자리하고 있습니다. 이 지역은 미래를 대비한 광역비즈니스 콤플렉스로 개발 중이며, 6성급 호텔, 롯데시네마, 롯데몰 등이 입점할 예정입니다. 더불어, 글로벌 기업들의 본사와 지사 등도 들어설 예정으로, 인구 유입 효과가 큰 비즈니스 시설 지역이 될 것으로 예측됩니다.

동탄역 헤미쉬 오피스텔 근방에 위치한 동탄테크노밸리는 약 156만 9000㎡ 규모의 첨단 산업, 연구, 벤처 시설 등이 복합된 산업 클러스터로 구축되어 있으며, 이미 다양한 기업들이 입주하고 있습니다. 이 지역에는 삼성전자의 나노시티 화성·기흥캠퍼스, LG전자, 한미약품 연구센터, 화성, 동탄 일반 산단 등이 위치하고 있어, 경제적 활성화와 일자리 창출에 기여하고 있습니다.

교통환경
동탄역 헤미쉬 오피스텔은 교통 편의성을 자랑합니다. 광역환승센터를 통해 서울까지 20분 이내의 접근이 가능하며, KTX, SRT, GTX, 복선전철 등 다양한 노선이 개통 예정입니다. 또한, 동탄역까지 도보 3분 거리에 위치하고 있어 도시 내 이동이 편리하며, 제2외곽순환도로, 경부고속도로, 용인서울고속도로 등 다양한 도로교통망을 이용할 수 있습니다.

주변환경
동탄역 헤미쉬 오피스텔 근방에는 다수의 초중고교가 인접하고 있으며, 성수미술관, 반석아트홀 등 다양한 문화시설이 가까이 위치해 있습니다. 대형마트인 이마트, 홈플러스, 코스트코 등도 인접하고 있어 생활 편의성이 뛰어납니다. 더불어, 동탄대로, 동탄청계로, 동탄순환대로와 인접하고 있어 교통 접근성이 우수합니다.

동탄역 헤미쉬의 특장점
역세권 프리미엄: 역과 가까울수록 부동산 가치가 상승하며, 다양한 노선과 역과의 가까운 거리로 부동산 가치를 높입니다.
환승역 프리미엄: 교통편의로 인한 오피스 수요가 높아 오피스텔 부동산 가치가 상승합니다.
숲세권: 도심 속 자연 친화적 주거환경을 선호하는 이들에게 매력적인 조망 확보로 부동산 가치가 상승합니다.
몰(Mall) 세권: 대형 쇼핑몰과 문화 시설로 이루어진 생활권으로 인프라가 풍부하며 부동산 가치를 높입니다.
투시도

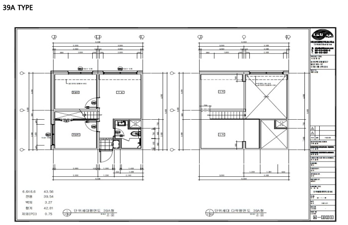
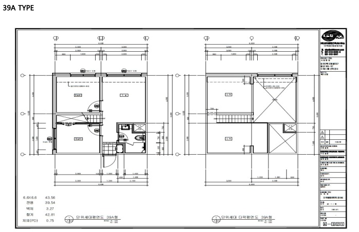
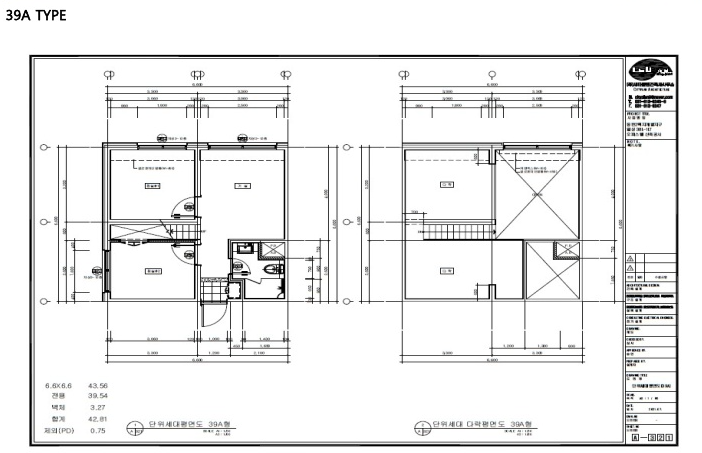
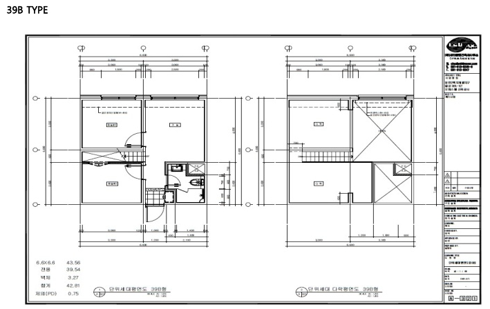
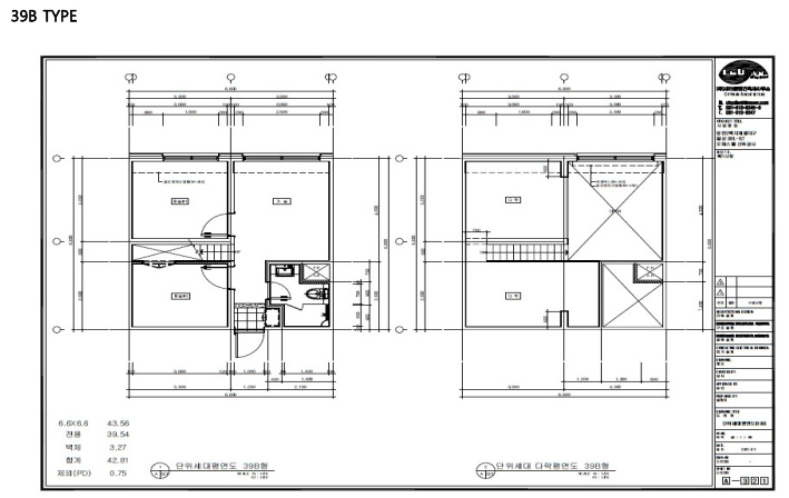
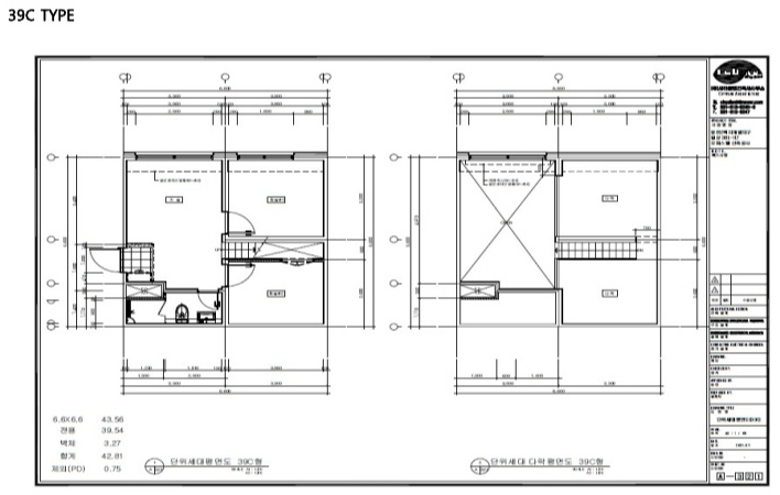
평면도






마무리
동탄역 헤미쉬 오피스텔은 주거 환경, 교통 편의성, 주변 시설, 특장점 등 다양한 면에서 뛰어난 선택지입니다. 이 글을 통해 이 오피스텔의 매력을 자세히 알아보셨기를 바라며, 부동산 투자 또는 주거 고려 시 도움이 되기를 기대합니다.
'부동산 정보' 카테고리의 다른 글
| 홍천 발로 리조트 풀빌라 분양 (0) | 2023.10.03 |
|---|---|
| 인천 만수 서해그랑블 SKY 35 지역주택 아파트 분양 (0) | 2023.10.02 |
| 부산 화명 푸르지오 헤리센트 소형아파트 선착순 분양 (0) | 2023.09.22 |
| 힐스테이트 관악센트엘 아파트 분양가 청약일정 평면도 (0) | 2023.09.21 |
| 힐스테이트 대명 센트럴 2차 대구 아파트 동.호수 선착순 분양중 (0) | 2023.09.20 |