포항 푸르지오 마린시티 구룡포아파트 분양
블루밸리 국가산업단지와 오션뷰가 어우러지는 포항 구룡포읍 하정리 828 공동주택 포항시 남구 구룡포읍 하정리에 위치한 828 공동주택 신축공사는 주목할 만한 사업으로, 지하 2층에서부터 지상 38층까지 솟아나는 5개 동과 총 678세대로 구성되어 있습니다. 이중 84㎡ 타입이 500세대로 약 73.75%를 차지하고 있으며, 101㎡ 타입은 178세대로 26.25%를 차지합니다. 이 공동주택은 오션뷰와 주변 자연환경이 뛰어난 입지로, 특별한 매력을 지니고 있습니다.

사업 개요
사업명: 포항 구룡포읍 하정리 828 공동주택 신축공사
대지위치: 경북 포항시 남구 구룡포읍 하정리 828번지 외 5필지
지역지구: 제3종 일반주거지역
대지면적: 33,242.2700㎡(10,055.8평)
건축면적: 3,898.4514㎡(1,179.3평)
연면적: 116,687.8908㎡(35,298.1평)
규모: 지하 2층~지상 38층, 5개 동 총 678세대
건폐율/용적률: 11.7274%/249.0328%
주차대수: 971대(세대당 1.42대), 상가 5대 포함
조경 시설: 대지면적의 24.33%

계약 사항
▶계약금 1,500만원으로 입주까지
계약금 1,000만원 계약가능 + 1개월 내 500만 원 ▶2차 계약금 차액 대출 알선 및 이자지원
▶합리적인 가격
83타입 3억 초반대의 1군 브랜드 + 오션뷰 프리미엄 ▶중도금 무이자
합리적인 가격에 이어 중도금 무이자까지
▶비규제지역 프리미엄
입주전 전매 가능/ 전입의무 X
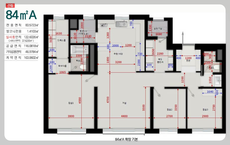
커뮤니티 및 분양가
이 공동주택은 다양한 커뮤니티 시설을 제공합니다. 또한 합리적인 가격에 맞춰 다양한 계약 사항을 제공하고 있습니다. 계약금은 1,500만 원으로 입주까지 납부되며, 1,000만 원 계약 후 1개월 내에 추가 500만 원이 납부됩니다. 중도금은 무이자로 지불할 수 있으며, 비규제지역에서의 프리미엄 혜택을 누릴 수 있습니다.


입지 환경
이 주택은 남포항IC와 인접하여 대구, 부산 등으로의 이동이 용이하며, 영남권 세컨드하우스 활용이 가능합니다. 또한 동해안 고속도로의 개통으로 인해 블루밸리 국가산업단지의 발전이 예상되어 생활 편의가 향상될 것으로 기대됩니다.

교육 및 교통 환경
교육 환경 또한 고려되어 있습니다. 초등학교부터 고등학교까지 다양한 교육 시설이 가까운 거리에 위치하며, 교통 환경 또한 개선될 예정입니다. 또한 주변 생활편의 시설이 잘 구비되어 있어 편안한 생활이 가능합니다.
프리미엄 포인트
이 공동주택은 명품 브랜드인 푸르지오에서 제공하는 특급 오션뷰가 매력입니다. 블루밸리 국가산업단지와의 협력으로 생활환경이 향상되며, 경제적으로도 유리한 전망을 지녔습니다.




블루밸리 국가산업단지와의 상생
오션뷰 세컨하우스는 블루밸리 국가산업단지와의 상생 효과를 예상할 수 있습니다. 영일만 대교의 활성화와 함께 이 지역의 가치가 상승하며, 국가산업단지의 발전으로 인한 유망한 입지로 주목받고 있습니다.

모델하우스



마무리
포항 구룡포읍 하정리 828 공동주택 신축공사는 오션뷰와 주변 환경이 뛰어난 입지에서 현대적이고 편안한 주거환경을 제공합니다. 교육, 교통, 생활편의 등 다양한 측면에서도 풍부한 선택지를 제공하며, 프리미엄 포인트와 블루밸리 국가산업단지의 발전으로 미래 가치를 예상할 수 있습니다. 이로써 포항 푸르지오 마린시티는 구룡포읍에서의 라이프스타일을 새롭게 재정립하고 있습니다.
100% 사전예약제로 운영하고 있습니다. 상담 및 방문계획이 있으신분은 아래 번호로 연락주시면 상담 및 방문예약을 해드립니다. 많은 관심과 문의 부탁드립니다. 감사합니다.
상담예약 010-7683-1788
'부동산 정보' 카테고리의 다른 글
| 토지종별의 특성과 활용 (0) | 2023.08.30 |
|---|---|
| 논현동 브라이트 n40 아파트 강남의 명품 아파트 (0) | 2023.08.30 |
| 북구청역 푸르지오 에듀포레 대구 아파트 미분양 (0) | 2023.08.28 |
| 청년도약계좌 신청기간 9월 (0) | 2023.08.25 |
| 파주 운정 푸르지오 파크라인 오피스텔 분양 (0) | 2023.08.24 |