평택 세인트캐슬 테라스 하우스

평택에 선보이는 우리 가족의 테라스 라이프!!
평택 세인트캐슬 테라스하우스
여자들의 로망을 담은 테라스를 갖고 싶기에 답답한 아파트보다는 여유 가득한 세인트캐슬을 소개 합니다.
자연과 함께 힐링할수 있는 옥상정원은 작은카페나 미니 수영장으로변신하며 가족 구성원의 기호에 맞게 미니정원, 바베규장으로 활용할수 있습니다. 1가구 3Room의 수직구조로 층마다 공간의 효율성과 프라이버시가 존중되며 독립적인 1가구 3층 수직구조로 설계되어 이웃간의 층간 소음 걱정이 없습니다. 또한 테라스하우스에 적합한 철근 콘크리트 구조로 설계,시공하여 보다 튼튼합니다
부지 근처 무성산과 근린공원 O2, 활력공원등이 인접하여 쾌적한 주거환경과 청북IC, 서해안고속도로, 경부고속도로,38.39국도 등의 가까운 쾌속광역 교통망으로 출퇴근이 용이합니다.
로데오프라자 및 대형마트, 홈플러스(안중점)등이 가까운 한 걸음 안의 생활 편의시설과 학군으로 인근 유치원,청옥초,청옥중, 청북고와 현재 초등학교 신성예정으로 더 좋아지는 교육여건 갖추고 있습니다.
주변으로 오송,현곡산업단지가 위치하여 삼성전자가 들어서 고덕산업단지,포승국가산업단지 진위 2산업단지 인접있으며
평택 세인트캐슬 테라스하우스 전용 25.6평/249가구 공급하며 실사용면적 32.65~36.17평(전묭면적+옥상테라스 제외) 고급형 주거공간으로 잔여세대 분양중에 있습니다.

사업개요
대지위치:경기도 평택시 청북읍 안청로6길 일원
지역/지구:제1종 일반주거지역
건폐율:30.63%~42.57%/법정 60%
용적률:29.59%~99.89%/법정 180%
건축규모:지상3층
건축구조:철근콘크리트구조
주용도:단독주택(다가구주택)
필지수:83필지
가구수:249가구
대지면적:24,885.226㎡(7,527.781평)
연면적:21,140.620㎡(6,395.038평)

광역 위치도
평택 청북신도시는 포승국가산업단지,고덕산업단지 등이 인접한 풍부한 개발호재와 배후 수요등 서울 및 수도권 1시간대, 서해안 지역 이동이 쉬운 교통망


평택시 개발사업현황
경기 남부권 최대 자급형 도시로 지속적 진화중
청북신도시 레포츠 공원조성 - 2023년 준공 목표(호수공원,다목적운동장, 테니스장, 야구장 외)


단지 배치도

설계컨셉 및 생활동선
층별 개별공간 구성/독립적 생활동선
옥상테라스 구성 가족간 대화, 여유로운 라이프스타일 영위
TYPE (전체면적)
A(35가구) - 107.94㎡(구 32.65평)
B(117가구) - 108.35㎡(구 32.78평)
C(96가구) - 119.58㎡(구 36.17평)
D(1가구) - 112.23㎡(구 33.95평)
B타입 시공 특장정 _ 32평형


B타입 평면도 _1F/2F/3F



옥상 테라스(이렇게 꾸며보세요)

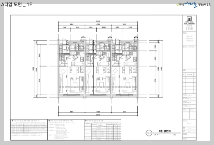
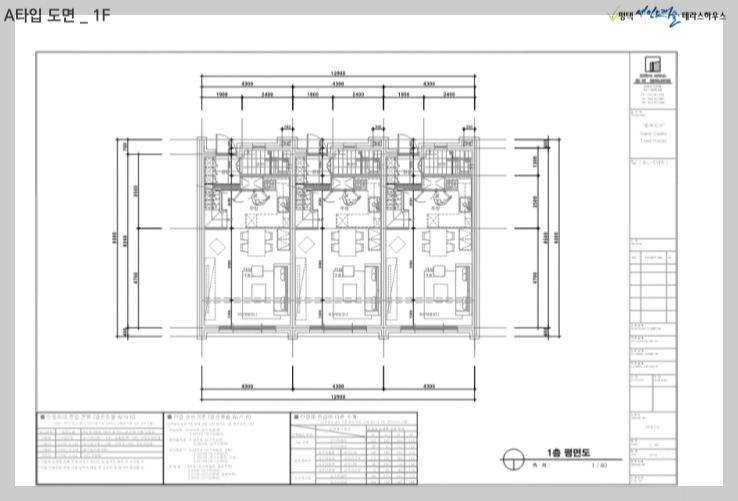
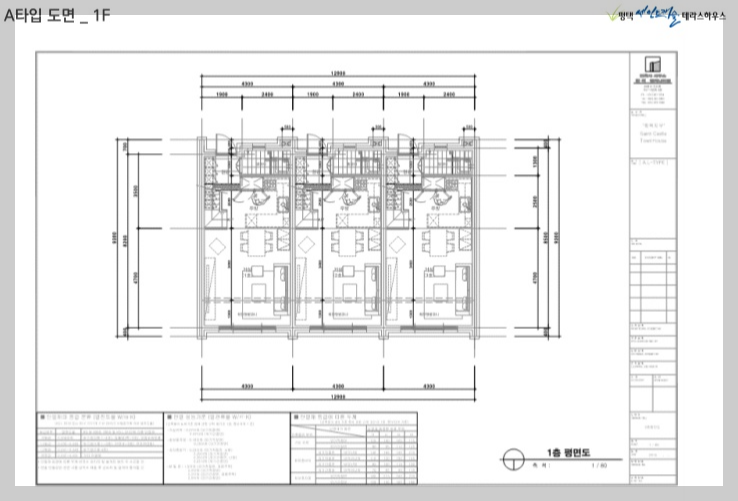
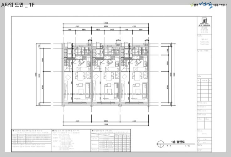
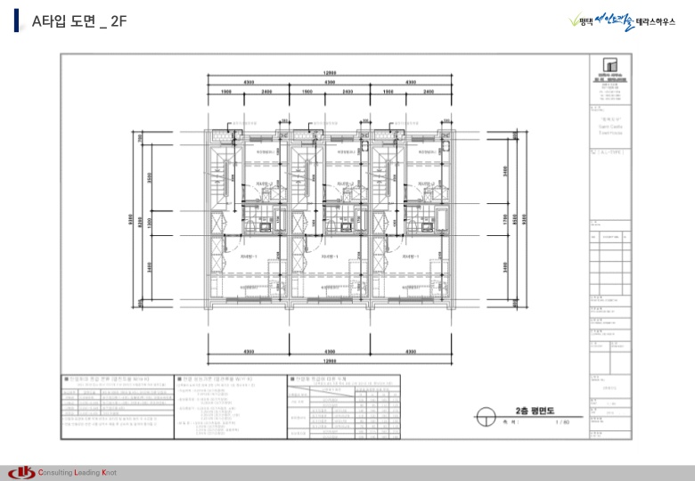
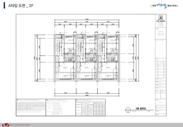
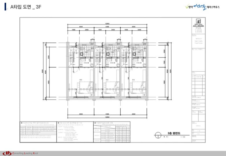
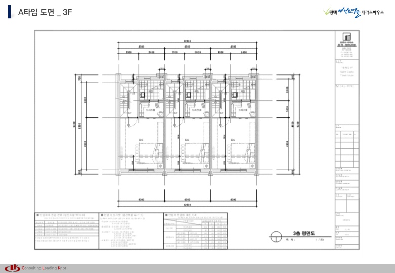
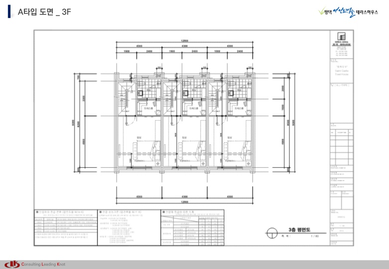
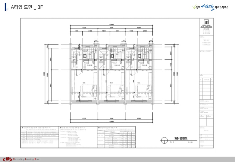
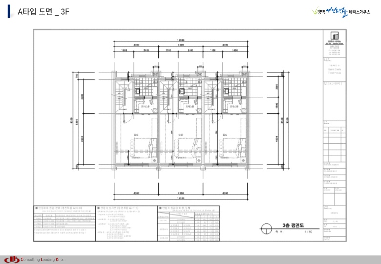
A타입 도면 1F/2F/3F



층간소음 스트레스 없는 3층 수직구조
층층마다 공간의 매직이 시작됩니다.




100% 사전예약제로 운영하고 있습니다. 상담 및 방문계획이 있으신분은 아래 번호로 연락주시면 상담 및 방문예약을 해드립니다.
많은 관심과 문의 부탁드립니다.
감사합니다.
상담예약 010-7683-1788
'부동산 정보' 카테고리의 다른 글
| 서울대벤처타운역 푸르지오 6월 오픈예정 분양정보 (1) | 2023.06.21 |
|---|---|
| 청년도약계좌 신청 및 금리 안내 (0) | 2023.06.18 |
| 제주도 한양수자인 영어교육도시 더 이튼 | 민간 임대 아파트 (1) | 2023.06.17 |
| 인천 주안 더샵 아르테 분양정보 (0) | 2023.06.14 |
| 래미안 라그란데 | 동대문구 이문동 분양정보 (2) | 2023.06.13 |