제주 라트라움 타운하우스 잔여세대 특별분양
제주의 한경면 청수리에 위치한 고급 타운하우스, 라트라움은 독특한 디자인과 편안한 주거환경으로 주목받고 있는 곳입니다. 이곳은 마치 갤러리나 카페를 방문한 듯한 분위기를 연출하며, 자연과 조화를 이루는 디자인으로 자연의 아름다움을 느낄 수 있는 공간입니다. 오늘은 라트라움의 매력과 특징에 대해 자세히 알아보도록 하겠습니다.

사업개요
위치: 제주 한경면 청수리 850번지외 4필지
지역/지구:계획관리지역
규모/높이: 15세대 10.5M 지상 3층), 커뮤니티 1동(지상 2층) 경비실(지상 1층)
구조: 철근콘크리트 구조
대지면적: 9,609.00㎡(2,906.72평
건축면적: 2,238.81㎡(677.24평)
연면적: 4,630.67/1,400.78평
용적률 산정용 연면적:3,916.03㎡(1184.60평)
건폐율:23.30%(법정 40%)
용적률: 40.75%(법정 80%)
주차대수:42대(세대별 29대/공용 13대-장애인 주차포함), 법정 39대 이상

제주영어교육도시와 10분 거리에 위치한 명품교육 주거공간 라트라움 최상의 교육환경(EDUCATION)
글로벌 제주영어교육도시의 모든 인프라를 누릴 수 있습니다. KIS, NLCS, BHA, SJA 등 4개 학교가 현재 운영 중이며, 폴턴 사이언스 아카데미 애서튼 2026년 9월 개교예정입니다.

제주 천혜의 자연환경(NATURE)
제주의 대표적인 청정지역인 곶자왈도립공원 인근으로 한라산 조망과 숲이 인접해 있으며, 제주 대표축제인 '곶자왈 반딧불이 축제가 열리는 자연이 아름다운 지역입니다.
문화(CULTURE)
휴양문화시설로는 유명 골프장과 신화역사공원, 협재 해수욕장 인접해 있으며 국내 최대 규모의 중문 관광단지 근접해 있어 생활과 여기를 즐길 수 있는 최적의 환경입니다.
헬스케어타운(MEDICAL)
서귀포 헬스케어타운은 제주국제자유도시의 핵심사업으로 국내외 의료연구시설 및 의료관광활성화를 위해 글로벌 의료복합단지로 조성중이며 의료, 숙박, 상가, 휴양문화 시설이 도입될 예정입니다.
잔여세대 특별할인 분양 안내
분양가
104동 93/ 168 -17억 5천만 원
109동 93/147 - 18억 5천만 원
라트라움은 고급스러운 분위기를 자아내는 독특한 구조와 디자인으로 눈길을 끕니다. 갤러리나 카페를 연상시키는 디자인은 고객들에게 독특한 매력을 선사합니다. 특히, 프라이빗한 구조는 주거 환경의 편안함을 더해주며, 카페를 들어선 듯한 착각과 공간 간섭이 없는 특별한 경험을 선사합니다. 주차는 벙커주차장을 이용하여 편리하게 이뤄지며, 루프탑의 넓은 테라스와 인피니트 풀장은 휴식과 여유를 즐길 수 있는 공간으로 조성되어 있습니다.

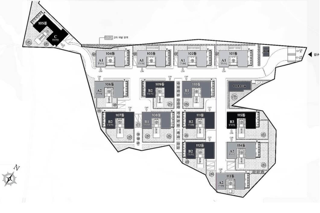
이곳은 제주 한경면 청수리에 위치하고 있으며, 15개 동으로 구성되어 있습니다. 각 타운하우스는 내부 면적이 전용 89평으로 동일하며, 1층에는 넓은 주방과 보조 주방 겸 세탁실, 욕실이 갖춰져 있습니다. 2층에는 넓은 거실과 마스터룸이 위치하고, 3층에는 방 2개와 욕실 2개가 마련되어 있습니다. 또한 옥상에는 넓은 테라스와 개별 수영장이 마련되어 있어 집 안에서도 물놀이를 즐길 수 있습니다.
단지배치도

A1 TYPE
전용면적:294.96㎡(89.23평) 분양면적:529.52㎡(160.18평) 1층 117.84㎡(35.65평)/2층 115.50㎡(34.94평)/3층 61.62㎡(18.64평)
A2 TYPE(106동/114동)
전용면적:292.74㎡(88.55평) 분양면적:514.35㎡(155.59평) 1층 116.22㎡(35.16평)/2층 114.90㎡(34.76평)/3층 61.62㎡(18.64평)
서비스면적
루프탑테라스 64.05㎡(19.38평)
수영장테라스/발코니 46.08㎡(13.93평)/4.32㎡(1.31평)
브릿지/발코니 11.88㎡(3.59평)
중정 2(POND포함) 81.36㎡(24.61평)
B1/B2 TYPE
전용면적:292.74㎡(88.55평) 분양면적:522.48㎡(158.05평)
1층 117.84㎡(53.65평)/2층 115.50㎡(34.94평)/3층 61.62㎡(18.64평)
서비스면적
루프탑테라스 64.05㎡(19.38평)
수영장테라스/발코니 46.08㎡(13.93평)/4.32㎡(1.31평)
브릿지/발코니 11.88㎡(3.59평)
중정 2(POND포함) 90.35㎡(27.33평)
B3 TYPE
전용면적:294.96㎡(89.23평) 분양면적:524.80㎡(158.75평)
1층 116.22㎡(35.16평)/2층 114.90㎡(34.76평)/3층 61.62㎡(18.64평)
서비스면적
루프탑테라스 64.05㎡(19.38평)
수영장테라스/발코니 46.08㎡(13.93평)/3.46㎡(1.05평)
브릿지/발코니 11.88㎡(3.59평)
중정 2(POND포함) 90.35㎡(27.33평)
C TYPE
전용면적:311.05㎡(94.09평) 분양면적:548.10㎡(165.80평)
1층 122.88㎡(37.17평)/2층 115.50㎡(34.94평)/3층 61.62㎡(18.64평)
서비스면적
루프탑테라스 64.05㎡(19.38평)
수영장테라스/발코니 46.08㎡(13.93평)/4.32㎡(1.31평)
브릿지/발코니 11.88㎡(3.59평)
중정 2(POND포함) 95.93㎡(29.02평)
분양면적표

모델하우스











라트라움의 주거공간은 명품- 프리미엄 친환경 자재인 천연 세라믹으로 마감.
* 빌드인 주방가구와 3m의 롱아일랜드는 주방의 품격을 높이다.
* 최신 풀 옵션 전자제품과 프리미엄 브랜드 가치를 더 높이다
* 보조주방과 세탁실이 별도 분리
*수영장은 온수 시스템을 적용 추운 날씨에도 따뜻하게 물놀이 가능
이 독특한 주거공간은 자연과 조화를 이루는 디자인을 갖추고 있습니다. 중정을 둘러싼 나무와 연못, 그리고 자연 소리가 가득한 공간은 자연과 함께하는 삶을 느낄 수 있도록 배려되어 있습니다. 최신 트렌드와 감각적인 디자인으로 마감된 주거 공간은 행복과 안락함을 함께 제공합니다.
마무리
라트라움은 제주의 대표적인 주거 브랜드로서, VVIP를 위한 특별한 공간으로써 새로운 삶의 지평을 열어줍니다. 자연과 문화 교육, 의료 등 다양한 측면에서 최고의 환경을 제공하여 행복과 만족을 안겨줍니다. 이곳에서는 나만의 특별한 재주의 아름다운 자연과 함께하는 행복한 삶을 시작할 수 있습니다. 라트라움은 고급스러운 분위기와 편안한 주거환경으로 고객들에게 새로운 경험을 제공하며, 제주에서의 특별한 삶을 꿈꾸는 분들에게 이상적인 선택이 될 것입니다.
100% 사전예약제로 운영하고 있습니다. 상담 및 방문계획이 있으신 분은 아래 번호로 연락 주시거나 관심고객등록을 해주시면 순차적으로 연락드리겠습니다. 많은 관심과 문의 부탁드립니다. 감사합니다.
상담예약 010-7683-1788

'부동산 정보' 카테고리의 다른 글
| 충북 내포신도시 대방3차 디에트로 분양가 및 모델하우스 선착순 특별분양 (0) | 2024.05.11 |
|---|---|
| 입주시까지 500만원 10년 장기임대아파트 제주영어교육도시 선착순 분양중 ~~ (0) | 2024.05.04 |
| 제주 더 트라움11 서귀포시 대정읍 타운하우스 국제학교 인근 특별분양 <즉시입주가능> (0) | 2024.04.29 |
| 제주 포레팰리스 영어교육도시 타운하우스 분양 대정읍 보성리 고급 주택 (0) | 2024.04.27 |
| 제주 임대아파트 국제학교 인근 아주 더 하이클래스 500만원으로 입주시까지 가능 (0) | 2024.04.26 |
