빌라드 드므 제주에서 찾은 프라이빗 하이엔드 주거
제주에서 자연과 프라이버시, 그리고 예술적 감성을 모두 갖춘 주거공간을 찾는 수요가 빠르게 늘고 있습니다. 하지만 고급이라는 이름을 내세운 곳이라 해도 실제로는 설계·자재·구성·사생활 보호 등이 아쉬운 경우가 많아 선택에 어려움을 겪는 소비자도 적지 않습니다. 저는 이러한 구조적 문제 속에서 진정한 대안을 찾는 분들에게 빌라드 드므라는 공간이 왜 확실한 해답이 되는지 설명드리고 싶습니다. 제주 영어교육도시 인근의 가치, 예술적 건축미, 그리고 상위 1%만을 위한 구조적 완성도까지 고려했을 때 이 단지는 단순한 주택을 넘어 새로운 ‘삶의 기준’을 제시하는 하이엔드 타운하우스로 자리매김하고 있습니다.


■ 예술성·프라이버시·기능성의 3요소를 모두 갖춘 하이엔드 구조
프리미엄 주거를 찾는 이들이 가장 어려워하는 점은 “아무리 고급을 찾더라도 외부 시선과 생활·휴식 영역이 명확하게 분리되지 않는다”는 점입니다. 그래서 제주에서도 사생활 보호와 공간성과 디자인을 모두 충족하는 단지를 찾기 어려웠습니다.
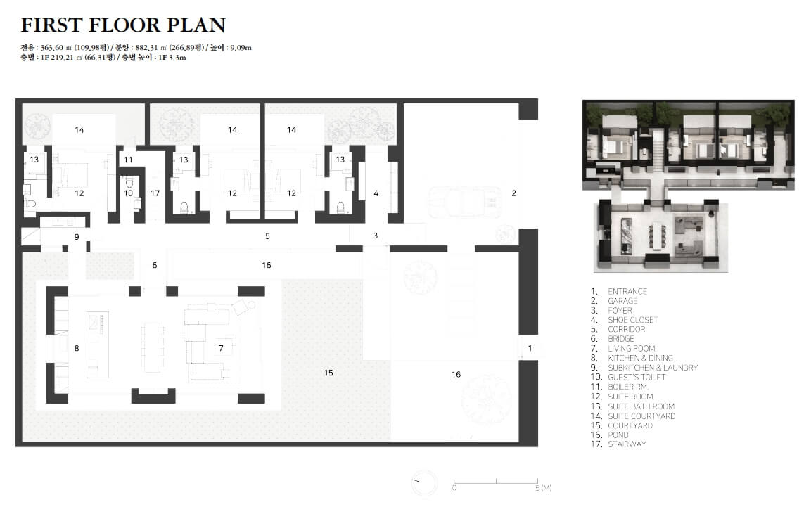
하지만 빌라드 드므는 설계 단계부터 이 문제를 정확히 짚고 설계 전 과정에서 ‘외부 차단·내부 개방·공간 독립성’을 가장 우선한 것이 특징입니다. 가로 20m × 세로 30m × 높이 6m의 외벽으로 둘러싼 구조는 외부의 모든 시선을 완벽하게 차단하면서도 내부에서는 전혀 답답하지 않은 개방감을 유지합니다. 이는 일반적인 타운하우스에서 흔히 볼 수 없는 하이엔드 설계 철학입니다.

■ 핵심 요약
- 하이엔드 설계 철학: 외부 차단 + 내부 개방
- 층고·자재·구성 최고급화: 아리오스테아 타일, 슈코 창호 등
- 프라이빗 구조 완성: 377평 대지, 건축연면적 세대당 109평) 5대 주차, 전용 인피니티풀
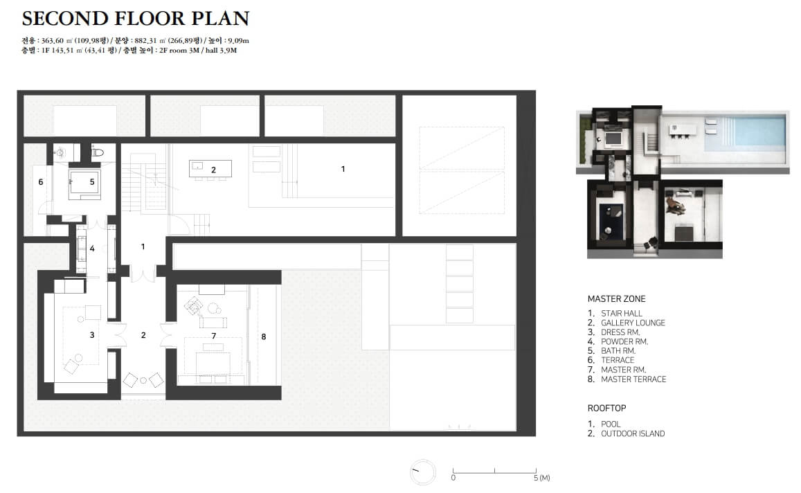
- 부부 독립형 2층 마스터존 설계
- 상위 1% 고객 타깃 단 8세대 공급


■ 공간이 갖는 ‘격’의 차이
고급 주거의 진짜 가치는 디테일에서 드러납니다.
예를 들어 1층에는 거실·주방·보조주방이 공용 라인으로 구성되고, 바로 옆 복도 너머에는 각 침실마다 전용 욕실과 테라스를 갖춘 생활공간이 배치되어 프라이버시를 극대화합니다. 이런 배치는 단순히 공간을 나오는 것이 아니라 “가족 구성원 모두의 생활 동선까지 고려한 설계”라서 사용감의 완성도가 확연히 다릅니다.
바닥은 이탈리아 가조띠 원목, 벽체는 아리오스테아의 대형 포셀린 타일, 창호는 독일 70년 역사의 슈코(SCHUCO). 조명 역시 이태리 플로스(FLOS) 브랜드를 사용해 공간 전반이 ‘하이엔드 라인업’으로 통일되어 있습니다. 이런 디테일 조합은 이름만 고급이 아닌, 실제로 살 때 체감되는 편의성과 감성적 만족도를 모두 채워줍니다.

■ 부부만을 위한 독립형 2층 마스터존
많은 고객이 고급 주택을 선택하면서 가장 중시하는 포인트는 “부부의 완전한 독립 공간”입니다.
빌라드 드므는 이 부분에서 확실한 강점을 갖습니다.
2층은 오로지 부부를 위해 구성되며, 넓은 라운지를 기준으로 안방, 11평 규모의 드레스룸, 듀얼 세면대, 대형 욕조, 프라이빗 샤워실까지 모두 하나의 동선에 맞춰 설계되어 있습니다. 내부와 외부가 완벽하게 분리되어 타 단지에서는 보기 어려운 사생활 보호 수준을 보여줍니다.
이는 단순한 주거가 아니라 “부부의 라이프스타일을 존중하는 공간 설계”이며, 실제 고급 수요층에서 가장 높게 평가하는 요소입니다.




■ 외부 정원·조경·인피니티풀까지 하나의 작품으로 완성
정원에는 물이 흐르도록 설계하고 홍매화·소나무·대나무를 식재해 한국적 미감을 살렸는데, 이는 공간 전체가 하나의 갤러리처럼 느껴지는 이유이기도 합니다.
또한 각 세대는 전용 인피니티풀을 갖추고 있어 제주에서 ‘완벽한 개인 휴식 공간’을 찾는 이들에게 대체 불가능한 특별함을 제공합니다. 특히 자연녹지지역이라는 입지적 특성까지 더해져 탁 트인 조망과 조용한 환경을 그대로 누릴 수 있습니다.







■ 차별적 가치 요약
- 단 8세대만 구성된 진정한 상위 1% 하이엔드 단지
- 모든 세대가 377평 대지 + 5대 주차 + 정원 + 인피니티풀 제공
- 내부는 266평 이상 실사용면적으로 구성된 초대형 구조
- 모든 자재·설비를 프리미엄급으로 통일
- 홍디 아키텍 설계로 예술성과 기능성을 동시에 구현
- 제주 자연녹지지역 위치로 희소성과 미래가치까지 확보
이 모든 요소를 종합적으로 고려하면 빌라드 드므는 단순히 ‘고급 타운하우스’가 아니라 제주에서 구현 가능한 하이엔드 주거의 상위 레벨을 보여주는 단지라고 할 수 있습니다.

결론
지금 제주에서 고급 주거를 찾는 이들이 겪는 가장 큰 문제는 “분명 비싸고 고급이라는데, 실제로 만족스러운 곳을 찾기 어렵다”는 점입니다. 하지만 빌라드 드므는 상위 1% 고객이 원하는 요소들을 처음부터 끝까지 일관된 기준으로 설계해 이러한 문제를 근본적으로 해결한 단지입니다.
프라이버시, 예술성, 디테일, 공간 구성, 미래가치까지 모두 고려한다면 이 단지는 ‘대체 가능한 상품이 없는’ 매우 희소한 선택지임이 분명합니다. 야간 조명 아래에서 더욱 빛나는 외관, 부부를 위한 독립 마스터존, 세대 전체를 하나의 작품처럼 완성한 구성은 단순히 집이 아니라 삶의 기준을 높여주는 공간입니다. 빌라드 드므를 직접 보면 사진보다 더 큰 감동을 느끼실 것입니다.
100% 사전 예약제로 운영하고 있습니다. 방문은 당일 예약이 불가하며 사전예약이 필요하므로, 방문계획이 있으신 분은 아래 번호로 연락 주시면 상담 및 방문예약을 해드립니다. 많은관심과 문의 부탁드립니다. 감사합니다.
상담 예약 010-7683-1788
'부동산 정보' 카테고리의 다른 글
| 제주 더 오션 스위트 신축 아파트 <즉시 입주 가능>모슬포 반값 분양 (0) | 2025.12.13 |
|---|---|
| 윈드스톤 7차 오션뷰+한라산뷰 제주 타운하우스 선착순 잔여세대 분양 (0) | 2025.12.06 |
| 수성 포레스트 스위첸 할인 분양 아파트 파동 kcc 신축 분양<즉시입주가능> (0) | 2025.11.27 |
| 영어교육도시 아주 더하이클래스 10년 민간임대 주택 분양 (0) | 2025.11.27 |
| 힐스테이트 장안센트럴 장안동 오피스텔 & 상가 분양 (0) | 2025.11.26 |